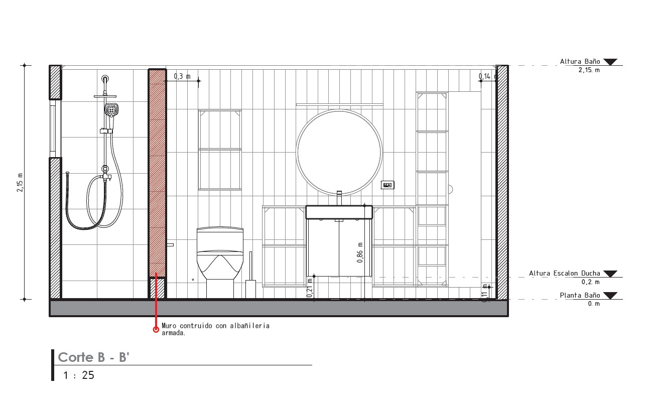
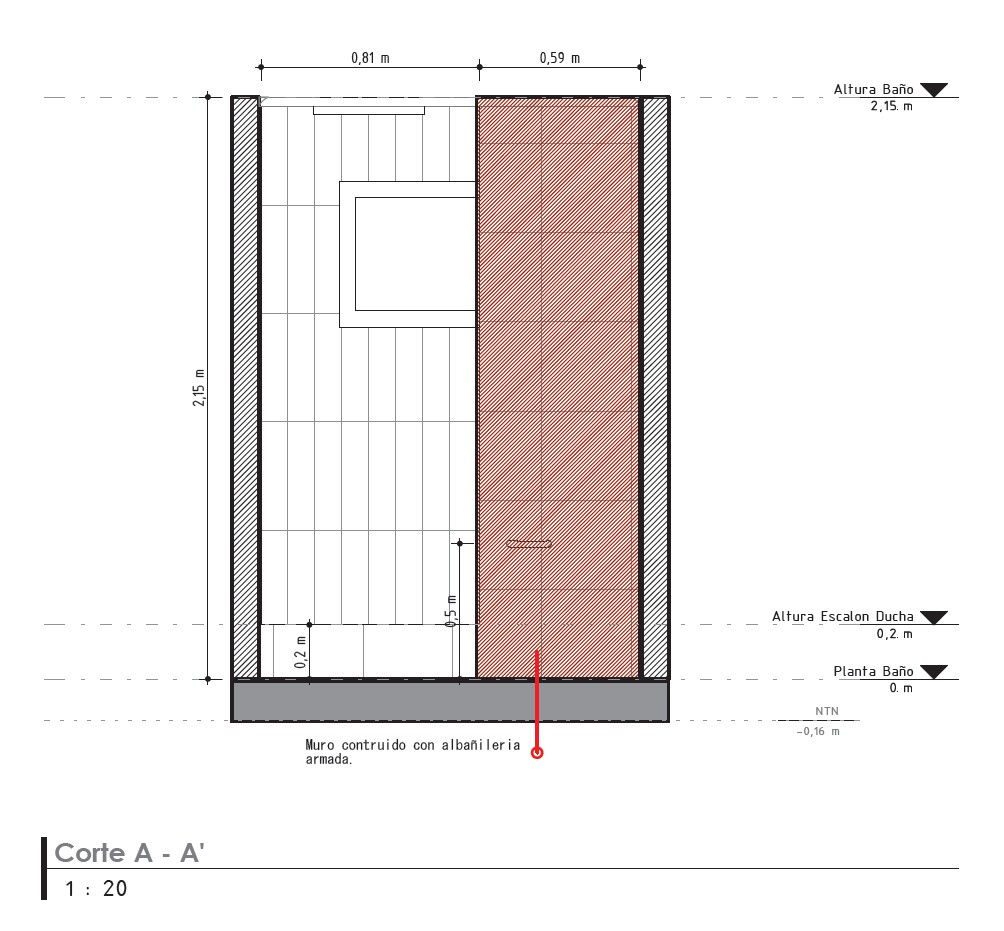
Este proyecto consistió en la intervención integral de un baño antiguo en Rancagua, con el objetivo de eliminar la carga visual del diseño original y sustituirla por una estética minimalista y atemporal.
El Reto: Actualizar un espacio con años de uso, mejorando tanto la infraestructura técnica como el impacto visual.
La Solución: Se optó por una paleta de materiales claros que maximizan la entrada de luz natural, combinada con una distribución más eficiente de las piezas sanitarias.
Resultado: Una transición fluida de lo clásico a lo moderno, donde la limpieza de líneas y la calidad de los acabados revalorizan la propiedad.










Una intervención integral en Rancagua que eleva el estándar del diseño residencial. Este baño es el resultado de una búsqueda por optimizar la luz y la materialidad, transformando una estructura tradicional en un oasis contemporáneo de alto valor estético.




