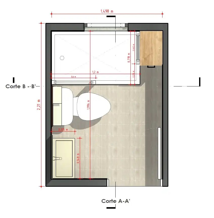
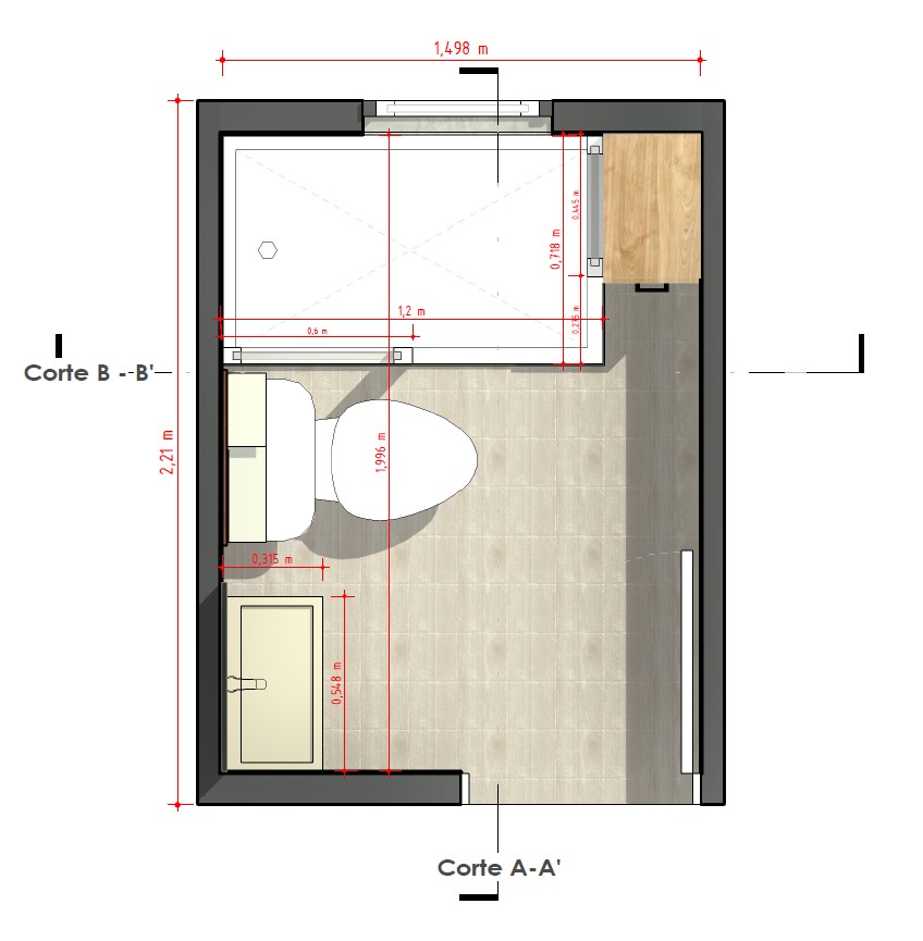
«La remodelación del Baño Charo se enfocó en elevar la experiencia sensorial de un espacio cotidiano. El diseño se basó en la armonía de texturas, combinando ceramicas y porcelanatos con detalles en madera que aportan calidez inmediata.»
Se optimizó la distribución para ganar amplitud visual, utilizando una paleta cromática neutra y sofisticada. Los accesorios y la iluminación estratégica no solo modernizan el ambiente, sino que lo convierten en un refugio de calma y limpieza dentro del dinamismo de la vida en departamento.


Testimonio de cliente
Me siento muy conforme con la transformación de mi antigua sala de baño, realizada por el joven y profesional arquitecto Andrés Guerra Galaz, quien le dio vida y buena utilidad a los espacios.
— Elcira Galaz, Baño Charo.









