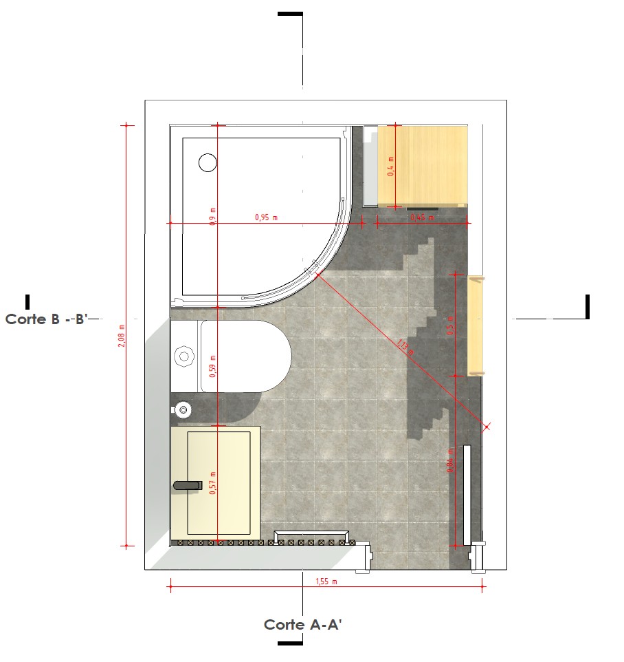
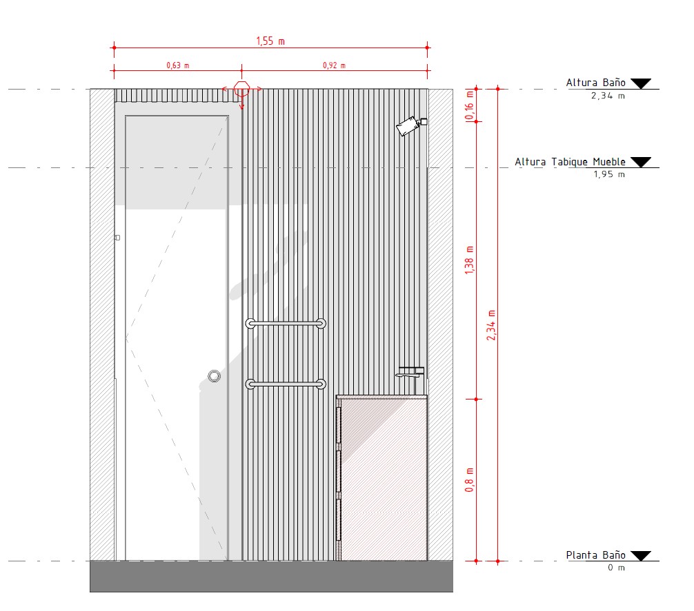
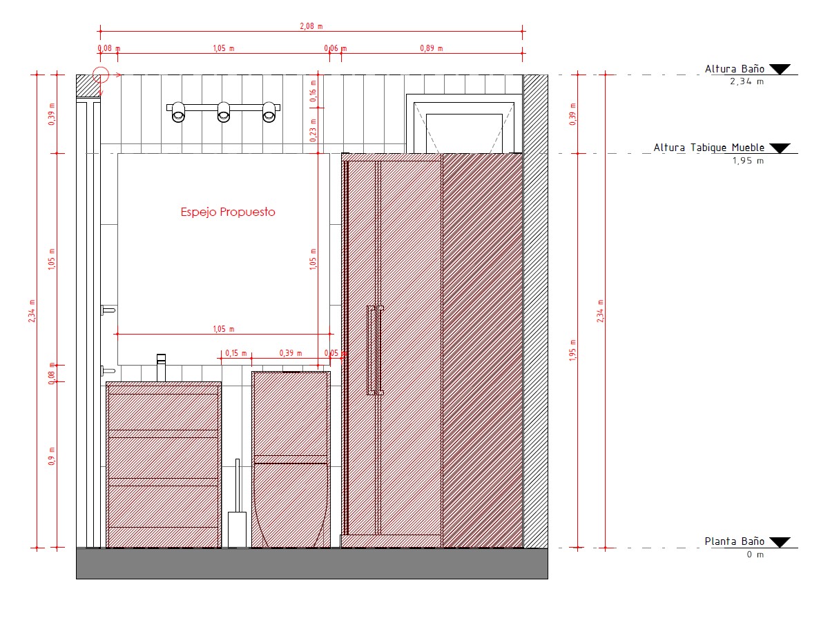
Este proyecto abordó la remodelación integral de un baño antiguo y desactualizado, transformándolo en un espacio moderno, funcional y estéticamente agradable. El desafío principal fue optimizar cada centímetro de una planta compacta, manteniendo la sensación de amplitud y ofreciendo soluciones de almacenamiento eficientes.













El diseño se centró en la optimización del espacio compacto mediante dos claves:
Actualización Estilística: Renovación total de artefactos sanitarios, revestimientos (tonos neutros para ampliar el espacio) y grifería, logrando una estética limpia y contemporánea.
Mobiliario Estratégico: Creación e instalación de muebles a medida (almacenamiento vertical y vanitorio) para maximizar la capacidad de guardado sin saturar el ambiente.
El resultado es un baño que, a pesar de sus dimensiones, se percibe amplio, luminoso y sumamente práctico, demostrando cómo un diseño inteligente puede transformar radicalmente la experiencia del usuario en un espacio cotidiano.




