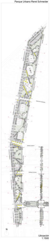
Diseño y creación ex novo (desde cero) de un parque urbano longitudinal. El proyecto tiene como objetivo establecer un nuevo espacio público esencial para la comunidad de Calama, transformando un terreno en un punto de encuentro y recreación.
Características Principales:
- Ejes de Recorrido: Creación de senderos peatonales bien definidos y accesibles a lo largo de toda la extensión del parque.
- Zonas de Uso Múltiple: Diseño de áreas funcionales diferenciadas, incluyendo sectores de esparcimiento, mobiliario urbano, zonas de juegos y áreas de sombra (pérgolas y paisajismo).
- Paisajismo y Vegetación: Integración de vegetación nativa y palmeras para aumentar las áreas verdes y generar un entorno más fresco y agradable, adaptado al clima desértico.
- Integración Urbana: El diseño establece una nueva volumetría que se integra armónicamente con las edificaciones adyacentes, mejorando la calidad del paisaje urbano.




