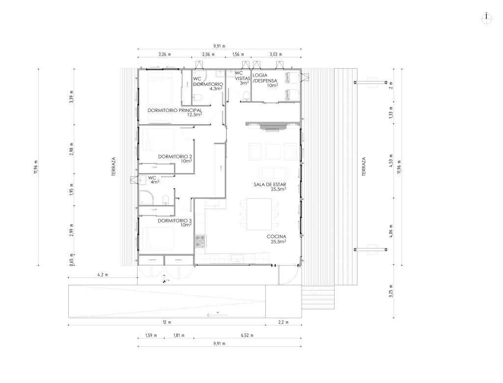
Arquitectura Moderna.
Proyecto de 120m² en su totalidad.

Our comprehensive suite of professional services caters to a diverse clientele, ranging from homeowners to commercial developers. With a commitment to innovation and sustainability, Études is the bridge that transforms architectural dreams into remarkable built realities.
2. Case studies that celebrate the artistry can fuel curiosity and ignite inspiration.




1. Through Études, we aspire to redefine architectural boundaries and usher in a new era of design excellence that leaves an indelible mark on the built environment.












