Arquitectura Colonial.
Calera de Tango, Chile.
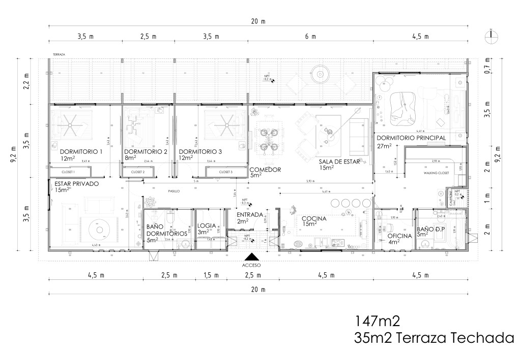
Este proyecto fue diseñado con el objetivo de ser una vivienda con oficinas y talleres en su interior y asi cumplir con dos funciones que cada vez más se van juntando en la vida cotidiana.
2. Arquitectura de techo de una agua con juegos de ventanas y volumenes.






1. Juego de diseño interior, con detalles de estilos de lineas simples como boho-chic, japandi y rustico.

Proceso Constructivo.
Construcción: Constructora Sinan.
Testimonio de cliente
Estamos muy conformes con el trabajo de arquitectura que realizaron en nuestra casa el joven profesional arquitecto Andrés Guerra que dio vida a nuestro sueño acá en la parcela. Excelente trabajo, muy buen profesional y buena utilidad a los espacios.




























