Arquitectura Colonial.
Modelo Sora

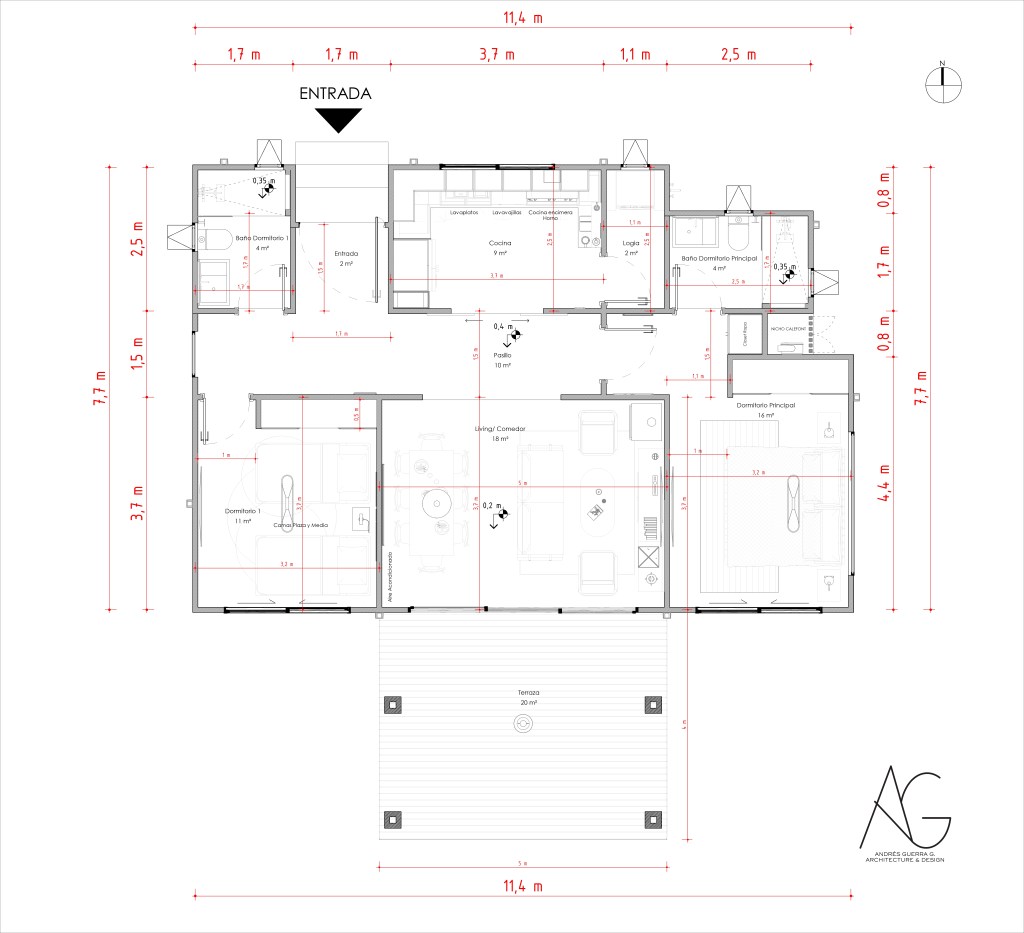
Este proyecto se desarrolla en un terreno ubicado en la comuna de Paine, cercano a la Laguna de Aculeo, entorno privilegiado que inspiró un diseño de estilo colonial reinterpretado en clave contemporánea. La vivienda se organiza en un solo nivel, con un esquema funcional que favorece la vida familiar y el contacto con la naturaleza.

El programa incluye un amplio living–comedor, maracado por un desnivel que se integra a la terraza posterior, generando continuidad entre interior y exterior. La cocina cuenta con logia y conexión directa al área social. El sector privado considera un dormitorio de invitados, un baño común y un dormitorio principal con suite, otorgando privacidad y comodidad.



En la fachada se combinan cubiertas inclinadas, tonos neutros y detalles en madera, logrando un carácter sobrio y acogedor. La terraza con pérgola se transforma en el corazón de la vida exterior, ideal para disfrutar del paisaje natural y las vistas hacia la laguna.
Este modelo equilibra la tradición del estilo colonial con una distribución práctica y moderna, pensado para quienes buscan tranquilidad y confort en un entorno rural privilegiado.




















