Arquitectura Moderna.
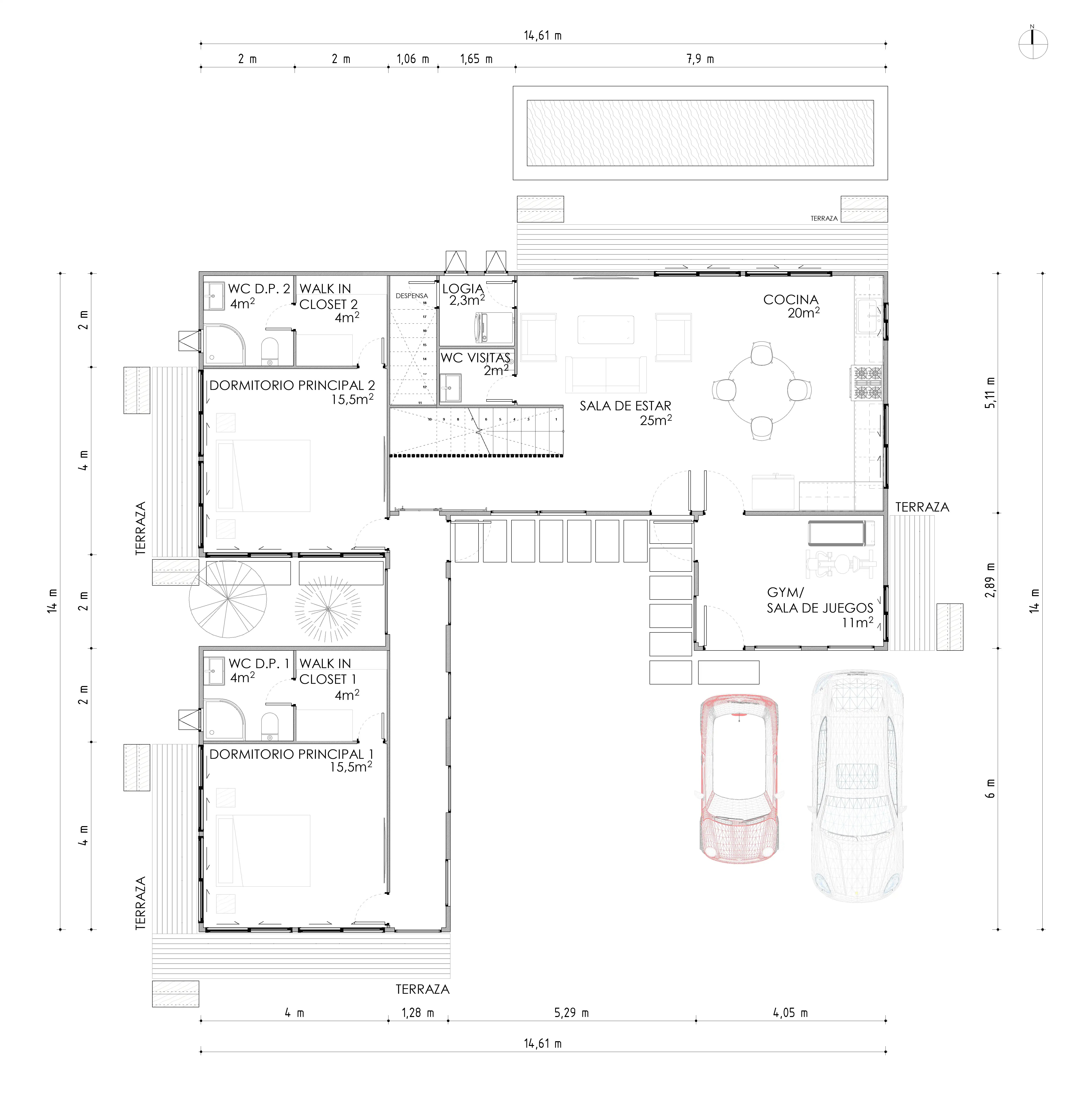
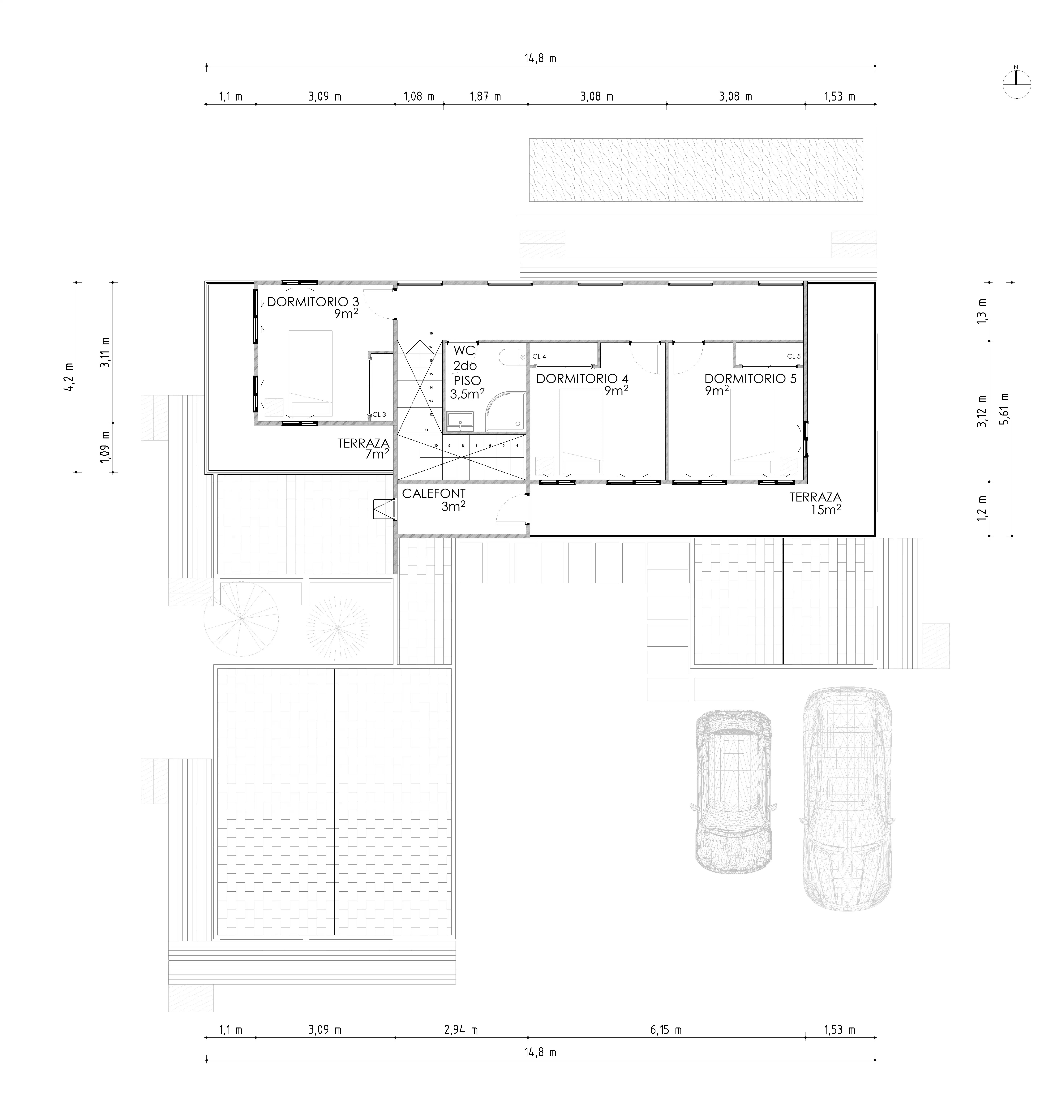
Proyecto de 177,5m² en su totalidad.

Esta vivienda moderna de dos niveles se caracteriza por su volumetría limpia y la combinación armónica de tonos neutros y materiales contemporáneos. El diseño se organiza en torno a un esquema en “L” que favorece la privacidad de las áreas íntimas y una fuerte conexión visual con el entorno natural.
En el primer nivel se ubican los espacios principales —living, cocina, gimnasio y dormitorios principales—, mientras que el segundo piso alberga las habitaciones secundarias con terrazas orientadas al paisaje.




Amplios ventanales permiten una iluminación natural abundante y refuerzan la relación interior–exterior, destacando el equilibrio entre funcionalidad, elegancia y confort.













