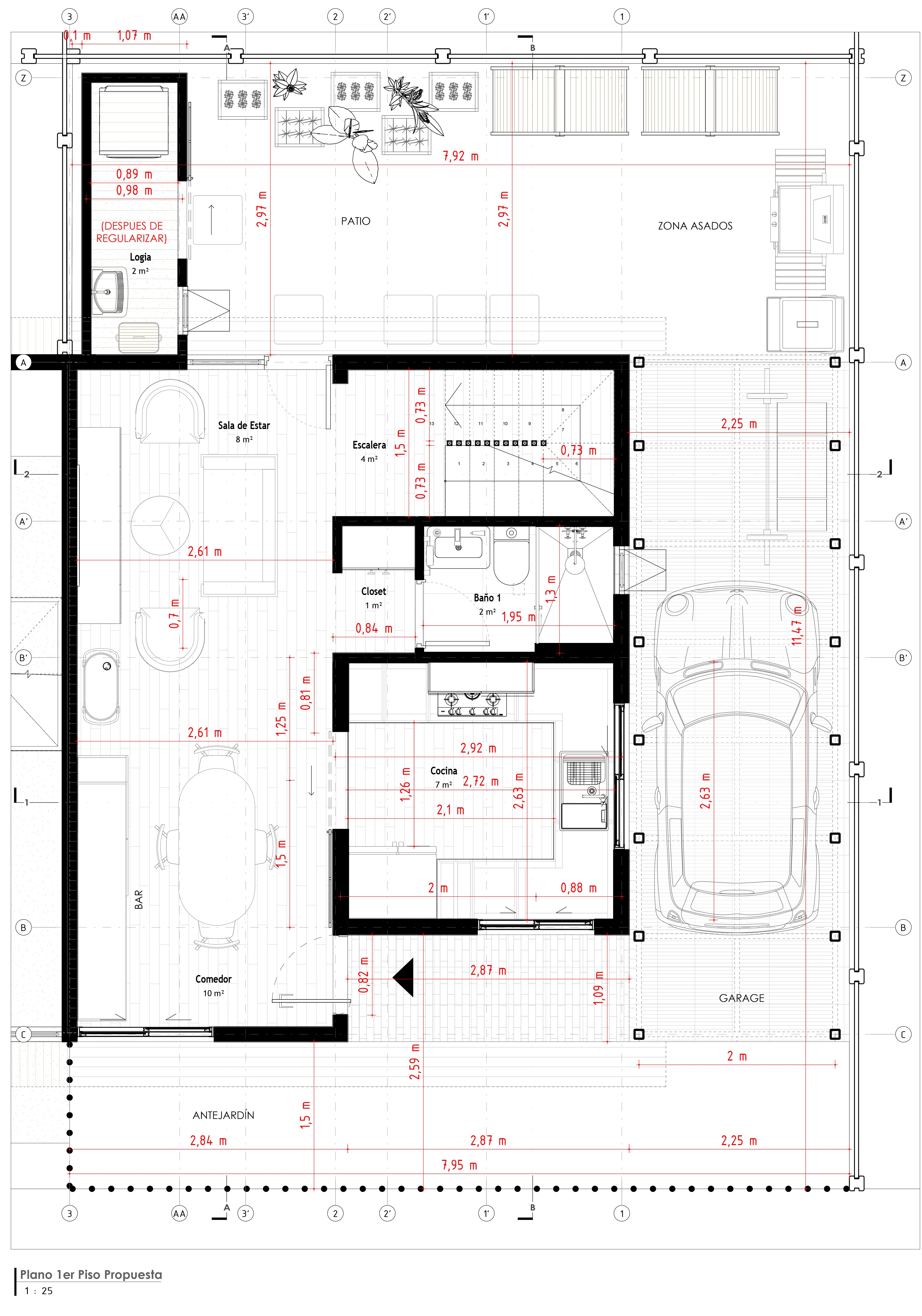
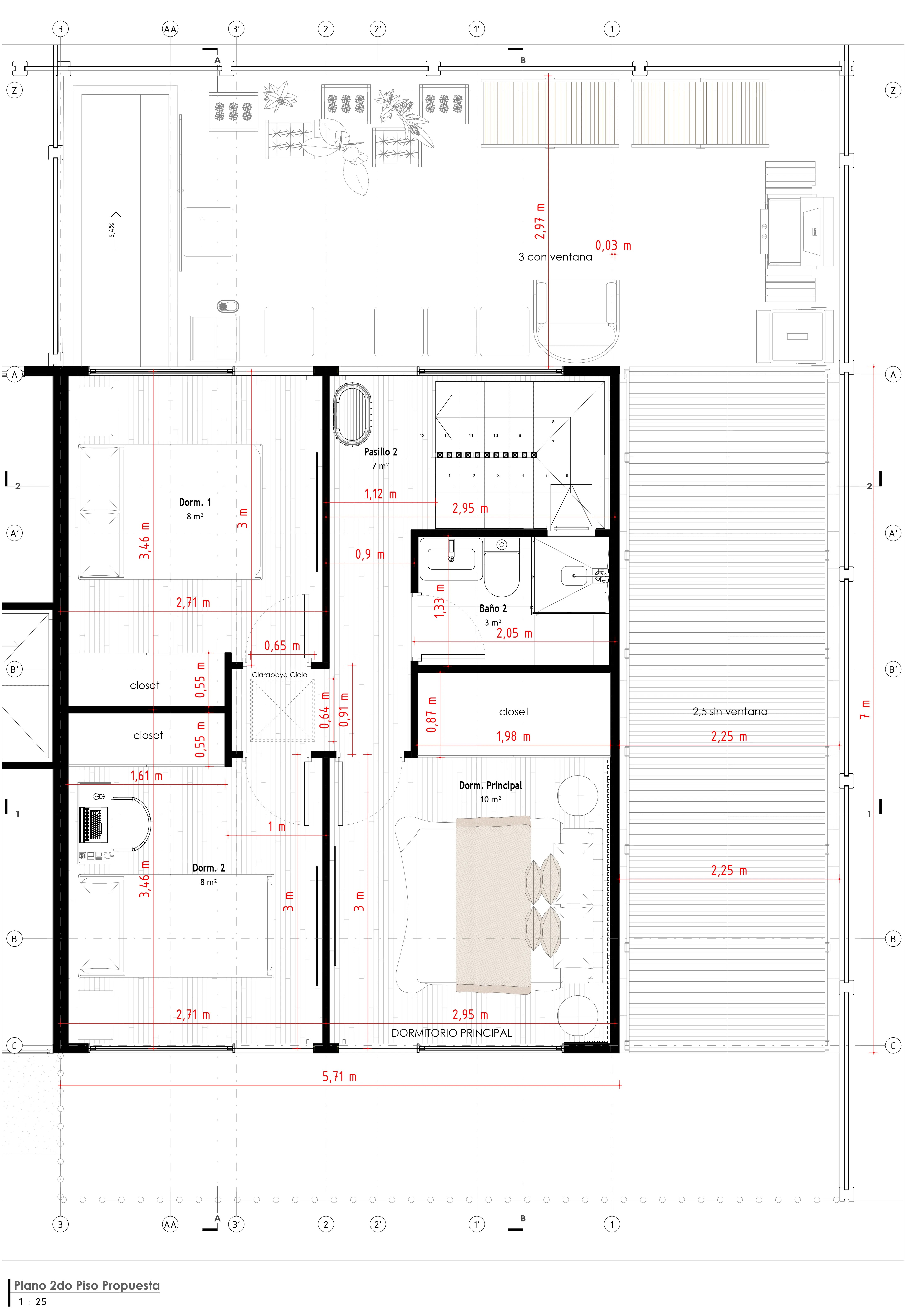
El proyecto Casa J.R. nace de la necesidad de redefinir por completo el concepto de habitar en una estructura existente. El desafío principal fue la creación de nuevos dormitorios, diseñados bajo una lógica de fluidez y confort térmico-visual.
Se proyectó un interiorismo cohesivo donde la materialidad actúa como hilo conductor, conectando las áreas sociales con las nuevas zonas privadas. El resultado es una vivienda que no solo crece en metros cuadrados, sino en calidad de vida, logrando una atmósfera equilibrada, moderna y profundamente funcional para sus habitantes.











Este proyecto es el reflejo de cómo una planificación inteligente puede expandir las posibilidades de un espacio, convirtiéndolo en un refugio a medida, amplio y lleno de luz.





































