Remodelación
Proyecto de 80m² en su totalidad.

Remodelación de Casa Antigua: Elegancia, Funcionalidad y Modernidad
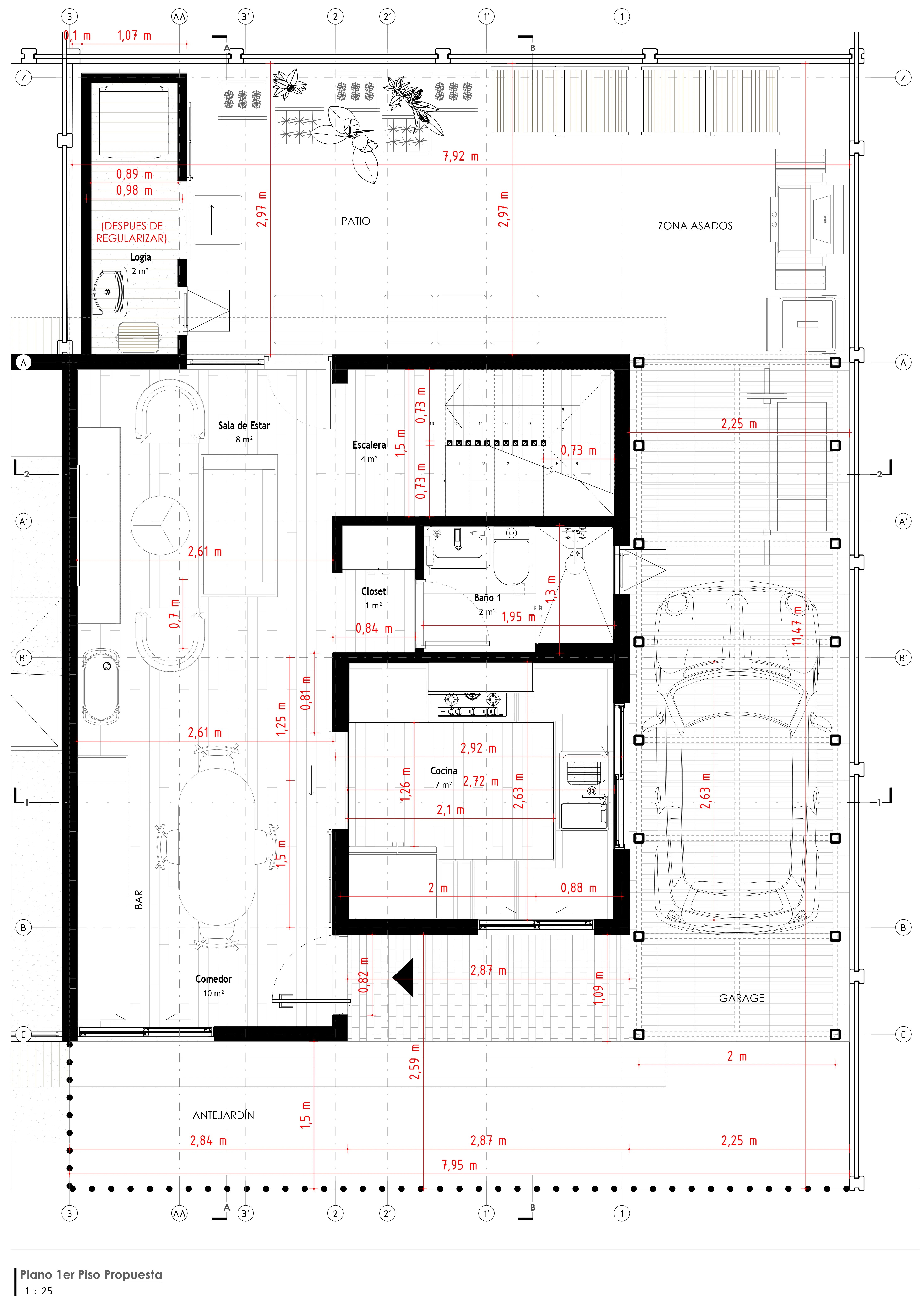
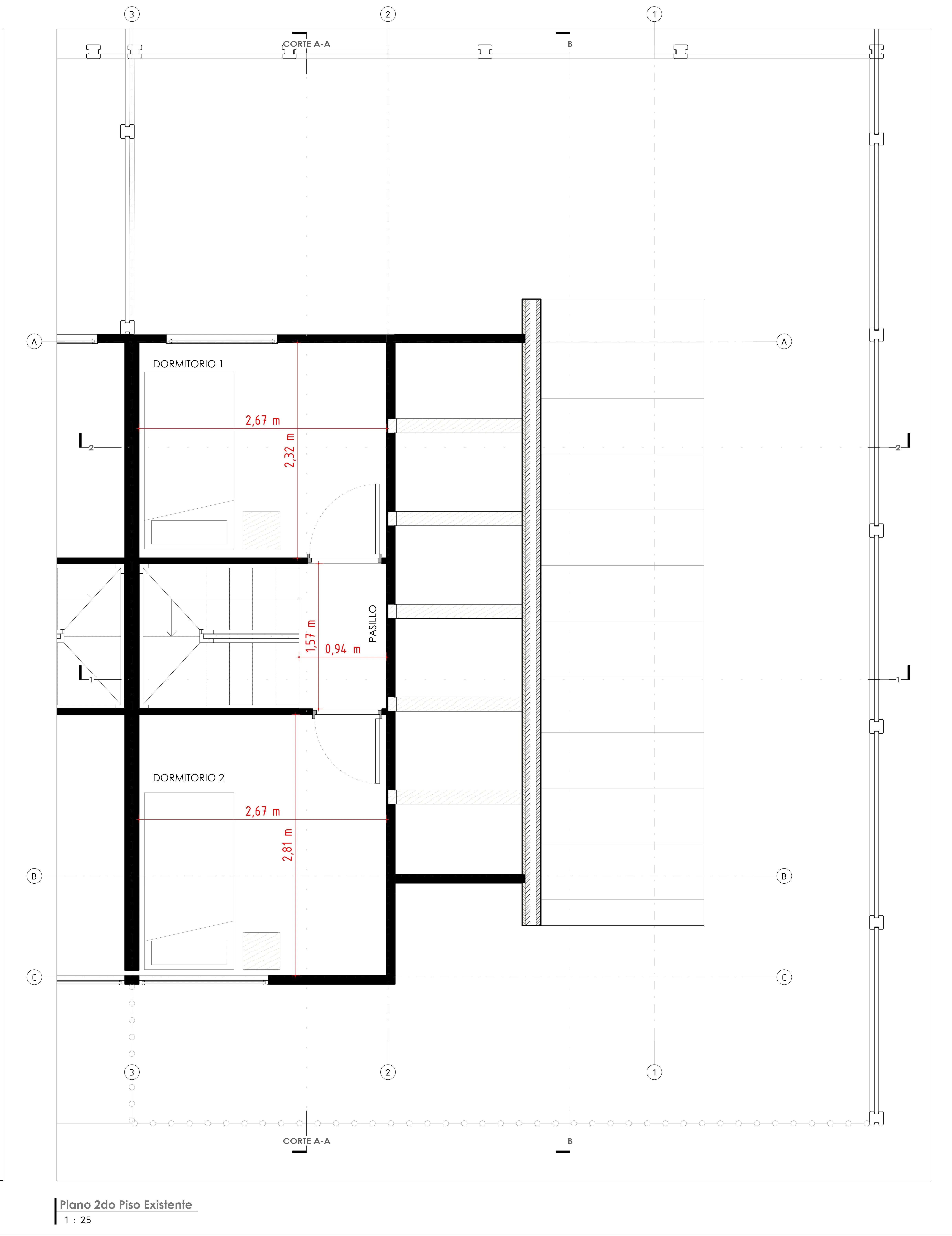
Este proyecto consistió en la remodelación y ampliación total de una vivienda antigua de dos pisos en Rancagua, con el objetivo de elevar radicalmente la calidad de vida y el valor del inmueble.
La intervención fue estructural y estética:
- Reorganización Profunda: Se extendió la losa del segundo piso para optimizar el espacio, reubicando la escalera y transformando el diseño interior.
- Nuevos Espacios Clave: Se diseñó una nueva suite principal en el segundo piso y una moderna cocina integrada en el primer nivel (anteriormente dormitorio), creando ambientes abiertos y fluidos.




3. Diseño Vanguardista: Se renovó por completo la fachada con una estética elegante y sobria, utilizando un contraste de revestimientos oscuros y grandes ventanales.
4. Exterior Funcional: Se proyectó un nuevo estacionamiento techado y una zona de asados con terraza, ampliando las áreas de uso familiar.
El resultado es una vivienda totalmente actualizada, funcional y con un diseño contemporáneo, lista para cumplir con las exigencias de la vida moderna.

















