Segunda vivienda en Casablanca.
Modelo Parma.

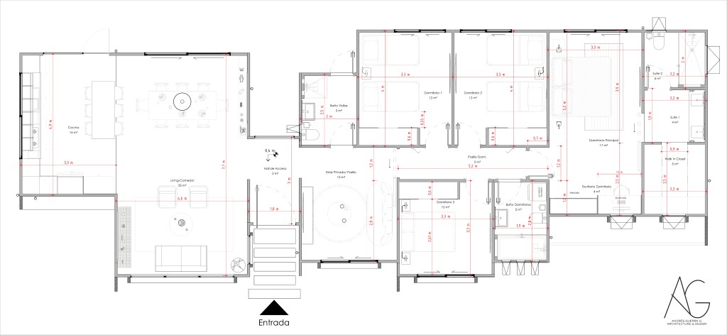
Ubicada en la comuna de Casablanca, esta segunda vivienda fue diseñada como un refugio de descanso y disfrute en medio de un entorno natural privilegiado. Su arquitectura moderna y sobria se organiza en un solo nivel, con una distribución práctica y luminosa, pensada para la vida en familia y las estadías de vacaciones.
El programa incorpora un living–comedor integrado a la cocina que se abre al exterior, creando un espacio central ideal para la convivencia. Los dormitorios se disponen de manera estratégica para brindar comodidad y privacidad, destacando la habitación principal, que integra un espacio de oficina diseñado para el teletrabajo en un ambiente íntimo y funcional.
Uno de los rasgos distintivos de este proyecto es el estar privado en el pasillo, que transforma un espacio de circulación en un lugar de encuentro y flexibilidad de uso, potenciando la habitabilidad de la vivienda.






La fachada, de líneas puras y proporciones equilibradas, combina planos blancos con detalles en madera y marcos oscuros que realzan los vanos, logrando una estética contemporánea y elegante que dialoga con el entorno natural.


















