Vivienda parte de un Proyecto Familiar en Peñaflor.
Modelo Roma.

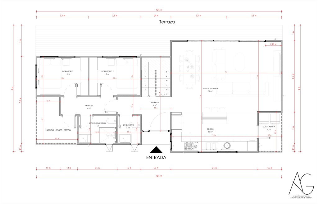
El proyecto se desarrolla en dos niveles, con un diseño contemporáneo que prioriza la funcionalidad y la relación con el exterior. En el primer piso se ubican las áreas comunes: un amplio living–comedor conectado a la terraza, la cocina con logia, un baño de visitas y dos dormitorios secundarios que comparten baño. Esta planta se articula en torno a la entrada principal y una terraza interior que aporta luminosidad y ventilación.
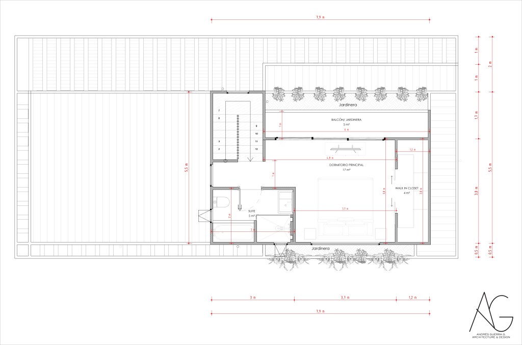
El segundo piso se destina al dormitorio principal en suite, con walk-in closet y balcón privado acompañado de jardineras que generan un vínculo natural con el entorno. La volumetría exterior combina líneas limpias, terrazas en cubierta y detalles de vegetación en fachada, otorgando frescura y carácter al conjunto.






Este modelo equilibra confort y modernidad, ofreciendo espacios abiertos y flexibles ideales para la vida familiar.



















