Arquitectura Colonial.
Modelo Aurora
Ubicado en un terreno amplio y rodeado de naturaleza en la comuna de El Patagual, este proyecto de vivienda unifamiliar fue concebido bajo un estilo colonial contemporáneo, combinando líneas clásicas con un diseño funcional y abierto.

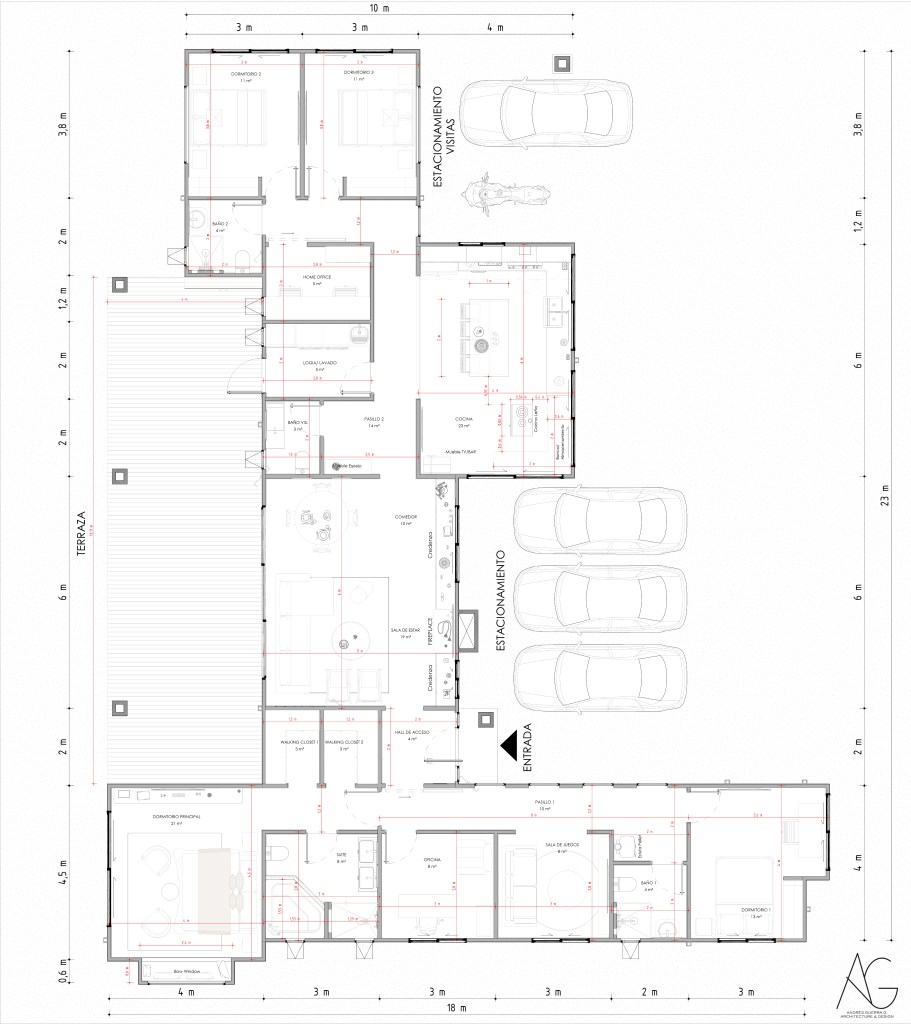
La casa se desarrolla en un solo nivel, favoreciendo la accesibilidad y la integración directa con el entorno. Su distribución en planta en forma de “L” permite separar de manera eficiente las áreas privadas y sociales, otorgando independencia a los dormitorios y amplitud a los espacios comunes, como el living-comedor conectado a una amplia terraza.



La materialidad destaca el uso de revestimientos en madera oscura, cubiertas inclinadas y elementos en piedra en pórticos, evocando la arquitectura tradicional, pero incorporando grandes ventanales que aportan luz natural y vistas hacia el jardín y la piscina.
El diseño exterior integra senderos, estacionamientos y un paisajismo que refuerza el carácter campestre del proyecto, mientras que la piscina se posiciona como un punto focal para el esparcimiento y la vida al aire libre.




























