Diseño y desarrollo de un condominio residencial de viviendas pareadas y aisladas, enfocado en ofrecer un estilo de vida moderno y familiar en un entorno seguro y con alto valor paisajístico. El proyecto se caracteriza por su arquitectura contemporánea de líneas limpias y volumetría sobria (hormigón aparente/pintado en tonos grises), adaptándose a la topografía del terreno.
Características del Condominio:
Estética: Fachadas de estilo minimalista, con ventanas estratégicamente ubicadas y un uso predominante de tonos oscuros/grises que confieren solidez y elegancia al conjunto.
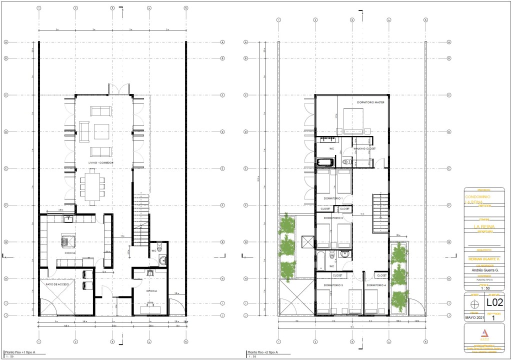
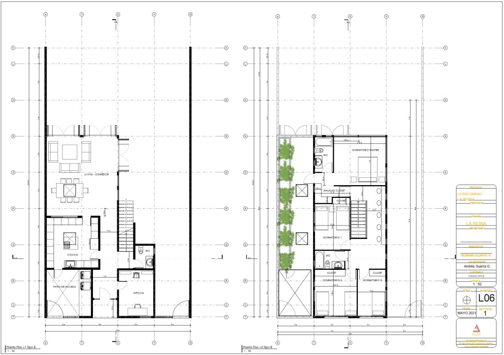
Viviendas Tipo: El proyecto se compone de viviendas de dos pisos distribuidas en al menos dos tipologías (Tipo A y Tipo B), ambas optimizando la distribución interior con:
Primer Nivel: Zonas sociales abiertas (living-comedor, cocina integrada o semi-integrada) y servicios.
Segundo Nivel: Zona privada con dormitorios (incluyendo dormitorio principal en suite) y espacios flexibles.
Emplazamiento y Entorno: El condominio se desarrolla en una franja de terreno longitudinal, con las viviendas orientadas hacia una calle interior que permite un alto grado de seguridad y privacidad. Se integran áreas verdes y equipamiento comunitario (como máquinas de ejercicio al aire libre) a lo largo del recorrido.


















